- Woonoppervlakte
- Circa 114 m²
- Perceeloppervlakte
- Circa 166 m²
- Bouwjaar
- Gebouwd in 2000
- Aantal kamers
- 5 kamers (2 slaapkamers)
Let op! deze woning wordt aangeboden met een bieden vanaf prijs. (starting price)
Unieke kans!! Samenwonen maar toch ook apart wonen? Dit betreft een beneden- én bovenwoning onder één dak met eigen parkeergelegenheid.
In de relatief jonge en kindvriendelijke wijk van Almere Buiten, de Oostvaardersbuurt, ligt deze ruime en volledig nieuw afgewerkte eengezinswoning met eigen parkeergelegenheid. De woning is recent verbouwd (2025) waarbij in de woning 2 volledig gescheiden woningen zijn ontstaan. Hierdoor is deze zeer geschikt voor bijvoorbeeld 2 vrienden/vriendinnen of een iemand met een inwonend kind of ouder(s)). Zowel de inbouwkeukens, de badkamers alsmede de vloer- en de wandafwerking zijn nieuw. Zelfs de tuinen zijn opnieuw aangelegd. Tevens zijn de cv-ketels in 2025 vervangen (voor elke woonunit een eigen ketel, type Vaillant ecoFITpro).
Alle noodzakelijke voorzieningen bevinden zich op loopafstand w.o. een NS station (Oostvaarders), bushalte, Albert Heijn Supermarkt en scholen (zowel basis- als voortgezet onderwijs). Het winkelcentrum van Almere Buiten is eveneens op enkele minuten rijden gelegen en via de uitvalswegen bereikt u snel de A6 richting Lelystad/Amsterdam of de A27 richting Hilversum en Utrecht.
Indeling begane grond:
Entree/hal met de meterkasten, cv-kast (met de cv-ketel voor de benedenwoning) en 2 toegangsdeuren (één voor de boven- en één voor de benedenwoning).
Benedenwoning:
In de benedenwoning treft u een tuingerichte living met open keuken, badkamer en een slaapkamer aan de voorzijde. De keuken is uitgevoerd met 2 rechte blokken en v.v. alle wenselijke apparatuur wo een koelkast, vaatwasser, oven, inductiekookplaat, afzuigkap (recirculatie) én een wasmachine. De badkamer is volledig betegeld en v.v. een wastafelmeubel, toilet (zwevend closet) en douchehoek met schuifdeuren. De woonkamer is zeer licht door het grote raam en de tuindeur geeft toegang tot de achtertuin. Deze is zonnig gelegen op het zuidwesten en fraai aangelegd met sierbestrating, een vrijstaande berging en een achterom. De begane grond is voorzien van pvc met vloerverwarming, de wanden zijn glad gestuukt.
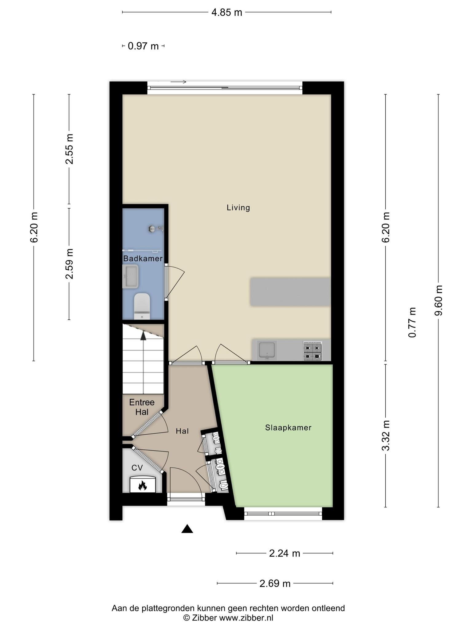
Bovenwoning
Via de toegangsdeur en de trap in de entreehal op de begane grond bereikt u de eerste verdieping. Hier bevindt zich een overloop met vaste kast en toegang tot de living. Deze is aan de achterzijde gelegen over de gehele breedte van de woning en heeft veel lichtinval. Hier bevindt zich tevens de open keuken. Deze is eveneens v.v. een inbouwkeuken bestaande uit 2 rechte blokken en v.v. een vaatwasser, koelkast, oven, inductie kookplaat en een afzuigkap (recirculatie). Vanuit de living bereikt u een slaapkamer met aangrenzend de badkamer. De moderne badkamer is geheel betegeld en uitgevoerd met een inloopdouche, wastafel, toilet (zwevend closet) en de aansluitingen voor de wasmachine. De vloeren van de bovenwoning zijn v.v. laminaat en de wanden zijn glad gestuukt. Op de 1e verdieping zijn de vloeren uitgevoerd met vloerverwarming. Via een trap op de overloop bereikt u de tweede verdieping.
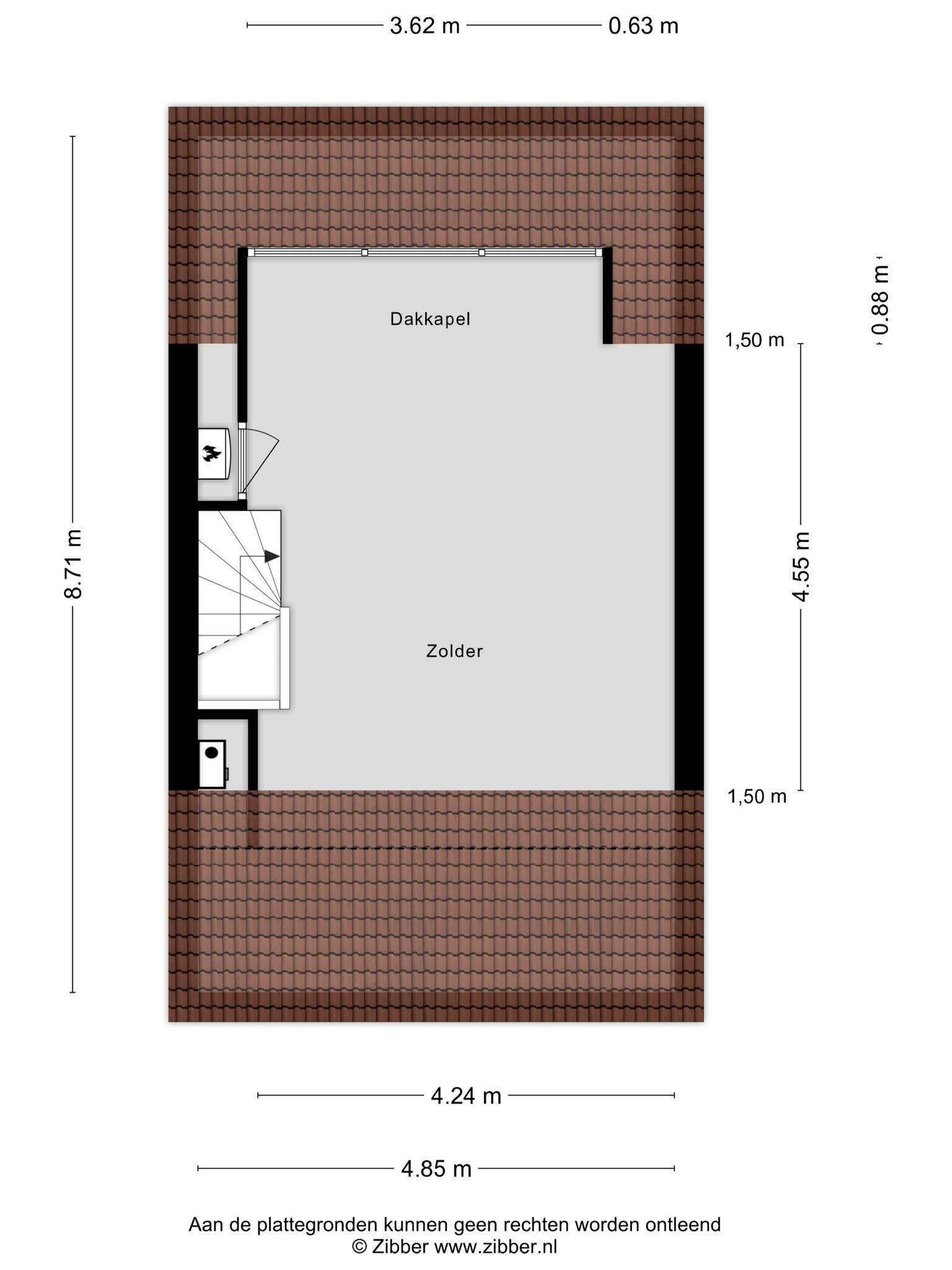
Tweede verdieping:
U treft hier een open ruimte met een brede dakkapel v.v. kunststof kozijnen (2025). U heeft hier voldoende ruimte om één grote masterbedroom of twee kleinere slaapkamers te realiseren. Hier bevinden zich tevens inbouwkasten voor de cv-ketel en de mv-unit. Bergruimte kan eventueel worden gerealiseerd achter de knieschotten.
Kortom, twee woningen onder één dak, een unieke kans voor wie graag wilt samenwonen maar toch ook zelfstandig wenst te blijven.
Let op!
De situatie voor het gebruik als 2 zelfstandige woningen is niet vergund door de gemeente Almere en kopers dienen de mogelijkheden voor een vergunning te (laten) onderzoeken.
Interesse gekregen in deze bijzondere woning? Bel ons voor een vrijblijvende afspraak en kom snel kijken!
Overdracht
- Vraagprijs
- € 425.000 k.k.
- Status
- Verkocht
- Aanvaarding
- In overleg
Bouw
- Object type
- Eengezinswoning, tussenwoning
- Soort bouw
- Bestaande bouw
- Bouwjaar
- 2000
- Soort dak
- Samengesteld dak bedekt met pannen
Oppervlakte en inhoud
- Woonoppervlakte
- 114 m²
- Perceeloppervlakte
- 166 m²
- Inhoud
- 375 m³
- Externe bergruimte
- 6 m²
Indeling
- Aantal kamers
- 5 kamers (2 slaapkamers)
- Aantal badkamers
- 2 badkamers
- Badkamervoorzieningen
- Toilet, wastafelmeubel, inloopdouche toilet, wastafel, inloopdouche, wasmachineaansluiting
- Aantal woonlagen
- 3 woonlagen
- Voorzieningen
- Mechanische ventilatie, tv-kabel, schuifpui
Energie
- Energielabel
- A
- Energielabel registratie
- 11-06-2025
- Isolatie
- Volledig geïsoleerd
- Verwarming
- Cv-ketel, vloerverwarming gedeeltelijk
- Warm water
- Cv-ketel
- Cv ketel
- Vaillant ecofitpro (2x) combiketel gas gestookt uit 2022 (eigendom)
Buitenruimte
- Ligging
- Aan rustige weg, in woonwijk
- Tuin
- Achtertuin, voortuin
- Afmetingen achtertuin
- 56 m² (11.1 meter diep en 5 meter breed)
- ligging tuin
- Gelegen op het zuidwesten en bereikbaar via achterom
Bergruimte
- Schuur / berging
- Vrijstaande houten berging
- Voorzieningen
- Voorzien van elektra
Garage
- Soort garage
- Geen garage
Parkeergelegenheid
- Soort parkeergelegenheid
- Openbaar parkeren, op eigen terrein
Energieverbruik in Almere
Energielabel deze woning
Energielabel A
Publicatie energielabel: 11-06-2025
Stroomverbruik per jaar
(Gemiddelde tussenwoning in Almere)
Gasverbruik per jaar
(Gemiddelde tussenwoning in Almere)
* Cijfers zijn afkomstig van het CBS en bedoeld als indicatie en kunnen verschillen voor deze woning
Indicatie hypotheeklasten
Eigen inleg:
Spaargeld / overwaarde
Rente:
Laagste 10-jaars rente
Laagste 10-jaars rente
2,85% - Centraal Beheer Groen... - NHG
3,08% - Centraal Beheer Groen... - 80%
Laagste 20-jaars rente
3,29% - Centraal Beheer Groen... - NHG
3,52% - Centraal Beheer Groen... - 80%
Laagste 30-jaars rente
3,41% - Centraal Beheer Groen... - NHG
3,74% - Centraal Beheer Groen... - 80%
Hypotheek:
Bruto maandlasten: € 0 p/m
Netto maandlasten: € 0 p/m
Hoe berekenen we dit?
Het rentepercentage is gebaseerd op de laagste 10 jaars vaste rente voor één hypotheekdeel. De vermelde rente (3.08% zonder NHG) is gecontroleerd op 10-02-2026. Deze berekening is gebaseerd op een annuïteitenhypotheek die volledig wordt afgelost, waarbij de maandlasten gedurende de gehele looptijd gelijk blijven. De werkelijke rente en netto maandlasten kunnen variëren, afhankelijk van uw persoonlijke situatie en de hypotheekverstrekker. Raadpleeg een financieel adviseur voor een nauwkeurige berekening en advies. Aan deze berekening kunnen geen rechten worden ontleend; het dient enkel als indicatie.
Documentatie
Kadastrale kaart
Leefomgeving
Brochure
Plattegronden PDF
WOZ waarderapport
BAG uittreksel
Bekijk onze website
Bezichtiging
Bod uitbrengen
Waardebepaling
Zoekopdracht
Alles downloaden
Zonnegrenzen bekijken
Op de kaart
Inwoners in Almere
Cijfers voor postcodegebied 1335
- Totaal aantal inwoners
- 12380 inwoners
- Mannen
- 50%
- Vrouwen
- 50%
Inwoners in Almere
Cijfers voor postcodegebied 1335
- tot 15 jaar
- 19%
- 15 tot 25 jaar
- 16%
- 25 tot 35 jaar
- 28%
- 45 tot 65 jaar
- 31%
- 65 en ouder
- 7%
Huishoudens in Almere
Cijfers voor postcodegebied 1335
- Eenpersoons zonder kinderen
- 29%
- Meerpersoons zonder kinderen
- 21%
- Huishoudens zonder kinderen
- 50%
Huishoudens in Almere
Cijfers voor postcodegebied 1335
- Huishoudens met één kind
- 14%
- Huishoudens met meerdere kinderen
- 37%
- Huishoudens met kinderen
- 51%
Woningen in Almere
Cijfers voor postcodegebied 1335
- Woningen voor 1945
- 1%
- Woningen tussen 1945 en 1965
- 1%
- Woningen tussen 1965 en 1975
- 1%
- Woningen tussen 1975 en 1985
- 1%
- Woningen tussen 1985 en 1995
- 1%
Woningen in Almere
Cijfers voor postcodegebied 1335
- Woningen tussen 1995 en 2005
- 85%
- Woningen tussen 2005 en 2015
- 10%
- Woningen na 2015
- 5%
- Huurwoningen
- 30%
- Koopwoningen
- 70%
Overige in Almere
Cijfers voor postcodegebied 1335
- Gemiddelde WOZ waarde
- € 247.000,-
- Personen onder de 65 met uitkering
- 9%
Overige in Almere
Cijfers voor postcodegebied 1335
- Adressen per km²
- 1872
- Stedelijkheid (schaal 1 op 5)
- 80%
Korte feiten over Almere
Almere is een stad en gemeente in de Nederlandse provincie Flevoland, in de polder Zuidelijk Flevoland. De gemeente telt 223.183 inwoners en heeft een totale oppervlakte van 248,77 km², waarvan 129,19 km² land en 119,58 km² water (31 januari 2023, Bron: CBS).
Wie is Vesta Makelaars?
Krijgt u te maken met vragen als "Ik ben verliefd geworden op mijn droomwoning, maar is het betaalbaar?" of "Is het tijd om een groter huis te overwegen?" of "Wat is de huidige waarde van mijn huis op de huidige markt?" Dan wilt u natuurlijk duidelijkheid. Met de huidige lage hypotheekrente en aantrekkelijke vastgoedmarkt is het een uitstekend moment om uw woning te koop aan te bieden. Een gratis waardebepaling helpt u snel te ontdekken of uw verwachtingen overeenstemmen met de lokale vastgoedmarkt.
Laat u deskundig adviseren door een kosteloze waardebepaling van een van onze ervaren makelaar-taxateurs bij Vesta Makelaars Almere. Onze makelaar-taxateur komt met plezier vrijblijvend bij u thuis in Almere. We zullen uw woning nauwkeurig en met expertise onderzoeken en documenteren, maar we zullen ook de omliggende huizen en waardeverhogende factoren in ogenschouw nemen. Denk hierbij aan uitbreidingen, dakkapellen, kleine renovaties en bijzondere ontwikkelingen in de omgeving. Na ons bezoek krijgt u van ons een schatting van de marktwaarde van uw woning. We geven u ook graag advies over hoe u uw huis succesvol kunt verkopen en over onze persoonlijke benadering. Onze gratis waardebepaling is kosteloos en vrijblijvend.
Neem contact op via telefoon of e-mail voor een afspraak of een vrijblijvend verkoopgesprek
Nieuwste reviews
-
Belter Wijdestraat 8
Kon snel langskomen voor een waardebepaling.De verwachte verkoopprijs kwam overeen met de uiteindelijke verkoopprijs.Duidelijke communicatie...
-
Joan
Zeer onprofessionele en kille communicatie. Na het uitbrengen van een serieus bod hebben wij drie dagen niets vernomen na de deadline. Tijde...
-
Andantestraat 70
Prima ervaring met Vesta.Klein team korte lijnen.Doen wat ze beloven.Goed contact.DIK tevreden !